Venta Parcela en Moraira,Moraira – 1008 – PP472
247.500€
Avenida del Mar, Severo Ochoa, Orihuela, La Vega Baja, Alicante, Comunidad Valenciana, 03300, España
Venta
170.000€
Disponible








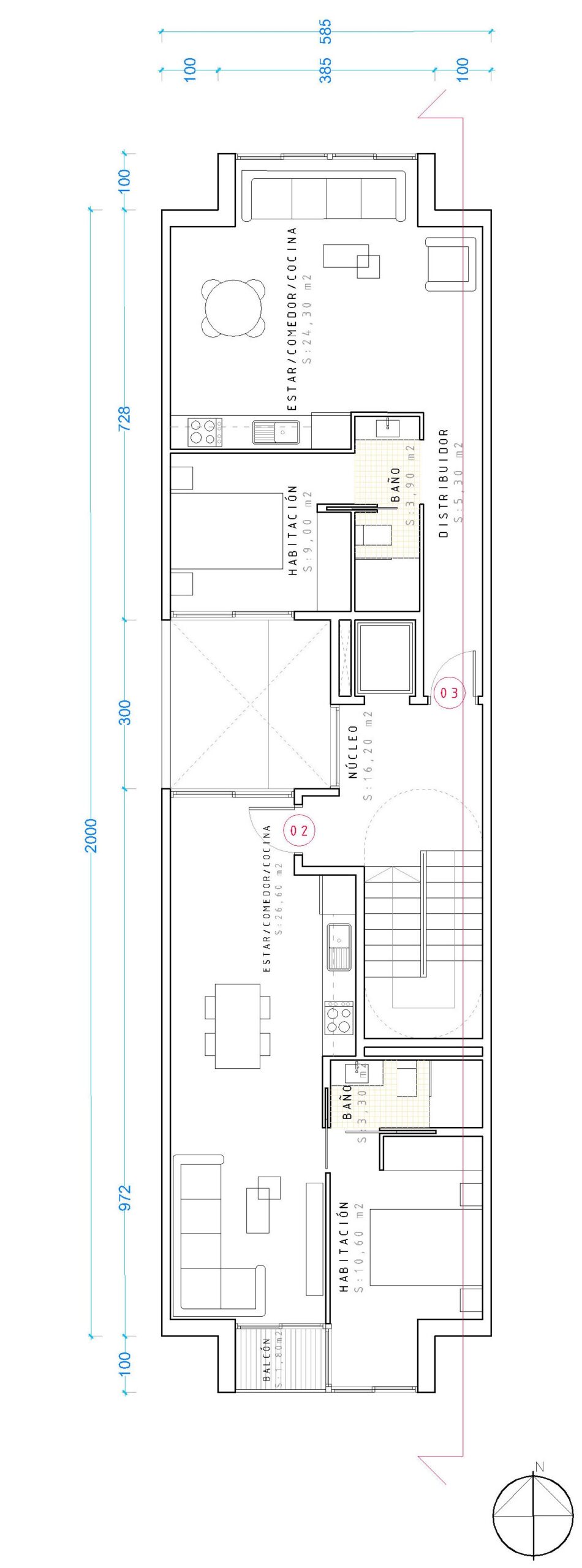
PROMOTORES CONSTUCTORES: Solar en Orihuela Sur | Proyecto 7 Viviendas + Trasteros + Lavaderos
Ubicación Estratégica: A un paso del Paseo de la Avenida Teodomiro y la Estación Intermodal (AVE/Cercanías).
Características del Activo:
Superficie: 117 m² (5,85 m fachada x 20 m fondo).
Doble Fachada (Norte/Sur): Clave para garantizar dos unidades por planta y ventilación cruzada.
Edificabilidad: 4 plantas + Sótano.
Proyecto de Alta Rentabilidad: El solar está optimizado para el producto con mayor demanda y rotación del mercado actual:
7 Viviendas: Seis de 1 dormitorio: Distribuidas en 2 unidades por planta. Ideales para inversión, alquiler de larga estancia o perfiles profesionales y una vivienda en la planta baja con dos dormitorios.
Sótano para Trasteros y lavandería: Aprovechamiento total del subsuelo para dotar a cada vivienda de un espacio de almacenaje extra, un valor añadido escaso en la zona que incrementa el precio final de venta.
Anteproyecto disponible (no vinculante): Un diseño pensado para las necesidades habitacionales actuales, optimizando cada metro cuadrado construido.
Inversión Segura: Zona consolidada con todos los servicios a pie de calle y excelente conexión de transporte( estación de tren AVE y estación de autobuses a un paso).
Un proyecto de tamaño contenido, fácil de ejecutar y con una salida comercial garantizada.
Owning a home is a keystone of wealth… both financial affluence and emotional security.
Suze Orman