Venta Casa / Chalet en Sierra / Altea la Vella, Altea – 22351
1.728.000€
Calle Adolfo Clavarana, 3, Orihuela, La Vega Baja, Alicante, Comunidad Valenciana, 03300, España
Venta
245.000€
disponible











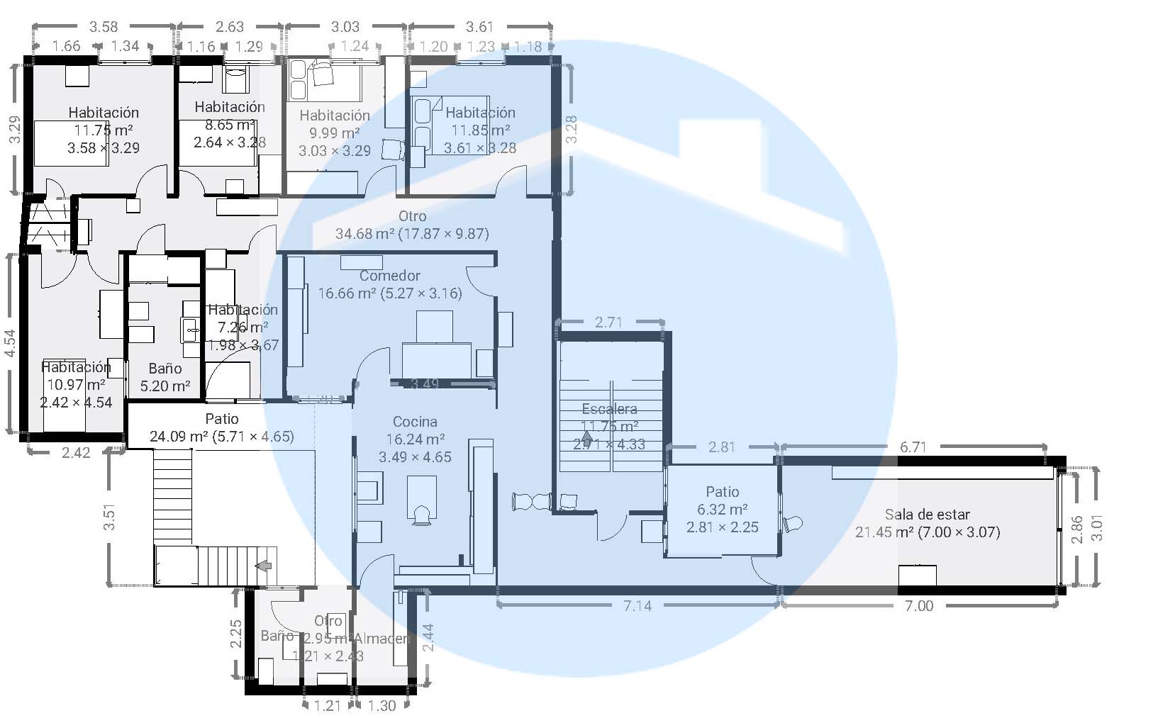
Atención inversor, junto el paso Calvo Sotelo y los juzgados, con fachada a sur y amplísima fachada a levante. Casoplón de unos 500 m2 en buen estado, distribuidos en tres plantas. La planta baja son estancias diáfanas para hacer lo que mas convenga( locales viviendas.. . ) con mas de 230 m2 con un patio que da mucho juego y la planta 1º distribuida en: vestíbulo, salón comedor, biblioteca-estar, cocina con despensa, seis dormitorios, baño aseo, lavadero, terraza descubierta y patio. La planta segunda, distribuida en: vestíbulo, salón estar, cocina, dos dormitorios, baño, lavadero y galería. las tres plantas están comunicadas por una cómoda y elegantes escalera.
Saca provecho a tu inversión desde el minuto 0. Busca un hueco y lo vemos en directo.
Owning a home is a keystone of wealth… both financial affluence and emotional security.
Suze Orman